
Rénovation d'un studio mezzanine en T2 meublé de gamme supérieure
OÙ ?
Quartier Amidonniers, (31)Toulouse
POUR QUI ?
Investisseur immobilier
BESOINS
Créer un bien de gamme supérieur au meublé existant sur le marché
Espace bureau/télétravail
Espace nuit
Cuisine moderne
Aménagement optimisé de l’escalier
Salle d’eau repensée
Rénovation globale électricité, plomberie, menuiserie, sol
STYLE
Moderne
MISSIONS
Accompagnement pré-offre d’achat sur le potentiel du bien
Analyse potentiel espace
Conception agencement
Décoration
Accompagnement suivi esthétique de chantier
BUDGET
35000€
DURÉE DU CHANTIER
3mois
Rénovation d’un studio mezzanine en T2 meublé de gamme supérieure
Pour ce projet d’investissement locatif, le client souhaite créer un univers chaleureux avec de beaux matériaux afin de valoriser l’offre des petits espaces meublé.
En effet l’idée essentielle est de fidéliser le locataire afin d’éviter les vacances locatives.
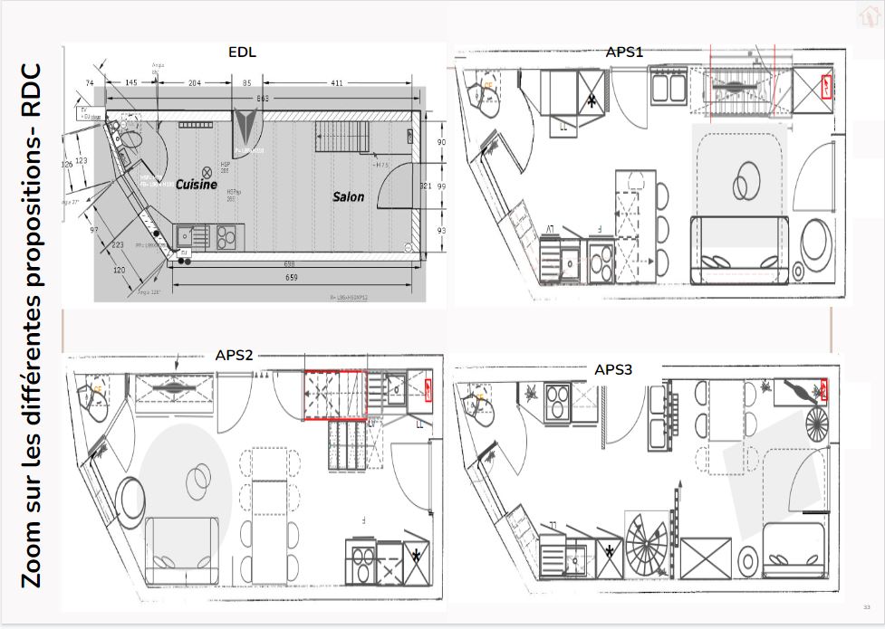
Cependant chaque logement est différent et les contraintes de ce dernier sont importantes. En effet la superficie, la hauteur sous pente et l’emplacement de l’escalier imposent de réfléchir avec une grande attention à l’agencement de chaque espace.
Pour cela j’ai proposé 3 plans qui répondent tous aux attentes du client qui a eu quelques difficultés à sélectionner la version finale parmi les choix offerts.
« Il ne s’attendait pas à tant de possibilité dans un espace si réduit ».
La sélection s’est faite sur des conseils en réalisation, temps travaux et investissement à faire.
Tout ses critères sont des éléments factuels pour un investisseur immobilier dont l’objectif principal reste la rentabilité de son investissement.
Si on a la chance de travailler avec une personne qui souhaite créer des espaces confortable et cosy pour ses locataires c’est encore mieux! Ici la volonté de faire du beau, avec des matériaux qualitatifs et durables sont également des éléments clés du projet.
La lenteur administrative a décaler la vente et le démarrage des travaux. La réalisation finale devrait dont être visible début 2023.
Je ne manquerai pas de vous faire suivre les visuels!
Où me trouver?
J'habite la commune de Cornebarrieu (Blagnac), au Nord de Toulouse et je me déplace en Haute Garonne, en Occitanie et plus à la demande.
Je travaille également à distance.
📍Toulouse / Haute Garonne / Occitanie / et à distance
✉ contact@terredhabitats.com
